搜索

羅馬奧斯蒂亞古港區考古新發現

在9 月23 日舉行歐洲文化遺產日之際,羅馬德國考古研究所發表了考古發掘研究成果。一個國際考古隊經過5個星期的實地挖掘工作,在羅馬奧斯蒂亞遺跡第五區發現“聖伯多祿、聖保祿和聖若翰洗者大教堂”遺址。為更好地保護這珍貴的遺產,在向公眾公開展示幾天後,將把這遺址重新掩埋起來。

(梵蒂岡新聞網)位於永恆之城羅馬西南的奧斯蒂亞(Ostia)古港區,是教會偉大聖師奧斯定與其母親聖婦莫尼加曾經生活過的地方。在9月23日舉行歐洲文化遺產日之際,羅馬德國考古研究所公布一項重大考古發掘成果,在奧斯蒂亞遺跡第五區發現“聖伯多祿、聖保祿和聖若翰洗者大教堂”遺址。歐洲文化遺產日的當天,該研究所副所長諾伯特·齊默爾曼(Norbert Zimmermann)在考古發掘現場主持了遺址發現介紹會。

五個星期的實地挖掘

齊默爾曼首先介紹,這個教堂遺址是一個他親自領導,由30位考古學家考組成的國際團隊發現的。過去5個星期,他們在奧斯蒂亞遺跡第五區展開實地挖掘工作。這項挖掘工作是三十年考古研究項目的一部分,從20世紀90年代開始,科隆大學考古學家海因策爾曼(Michael Heinzelmann)開始對奧斯蒂亞遺跡尚未發掘的區域進行系統研究,作為與波恩大學基督宗教考古系法伊斯特(Sabine Feist)教授和羅馬大學的研究合作項目。

航拍照片、地球物理和地層學研究

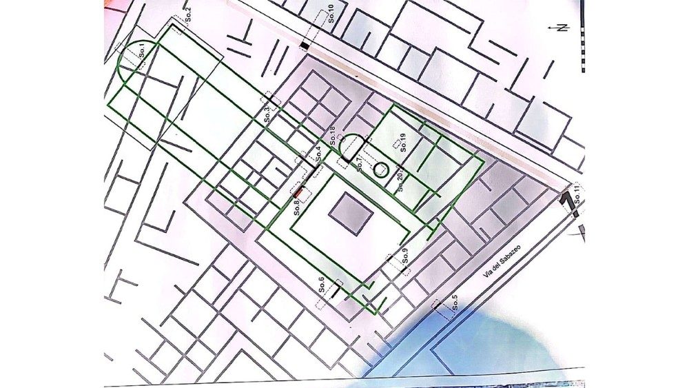
齊默爾曼表示,二十世紀拍攝的大量航空照片、地層調查、地球物理研究和地面調查,經過電腦處理和模擬重建,確定了奧斯蒂亞古教堂的確切位置。科學考古隊在1998年至2001年間,四次挖掘的範圍是第二、第四和第五區,而在1998 至1999 年間,特別集中在對早期基督徒建築群的分析,並進行了九次調查,儘管破損嚴重,但仍有條件對這些建築群進行研究分析。電子化模擬重建了原始教堂的平面,它是一座帶聖洗堂的三殿式大教堂。

早期基督徒在奧斯蒂亞的臨在

這位德國考古專家解釋道,為了加強奧斯蒂亞基督徒的團結及紀念與羅馬城有密切關係的聖人,這個大殿便以宗徒伯多祿、保祿和聖若翰洗者的名字命名。現今的考古發現填補了奧斯蒂亞基督徒發展史上的空白。他說:“事實上,直到今天,除了德庫馬諾(Decumano)大教堂以外,奧斯蒂亞城幾乎沒有任何基督徒存在的痕跡。奧斯蒂亞主教座堂的發現令人興奮。我們的考古挖掘工作第一階段已經結束,挖掘工作還將持續五年。”

展示大教堂後殿和神職區

最近幾天,即在歐洲文化遺產日之際,發掘遺址特別向公眾展示。為了更好地保護遺址,也為了今後進一步的科學研究,發掘遺址將很快被掩埋。此次公開展示的是教堂半圓形的後殿和神職區部分,其它部分還未被挖掘。支撐後殿的兩個柱子是早期基督宗教建築中獨一無二的典型式樣。教堂建於公元四世紀初,氣勢雄偉,包括前門廳在內全長八十米。

君士坦丁皇帝敕令建造的大教堂

齊默爾曼繼續解釋,從考證年代、尺寸和建築體積上看,都證實了該主教座堂建造於325年至335年間。他說:“根據史料記載,我們知道除了拉特朗大殿、聖伯多祿大殿以及阿爾巴諾(Albano)、卡普阿韋泰雷(Capua Vetere)和拿坡里的一系列主教座堂外,皇帝還捐贈錢財給奧斯蒂亞主教建造這座教堂。我們也知道它位於勞倫蒂納(Laurentina)門附近,也就是我們進行挖掘工作的地方。確切地說,我們不知道君士坦丁為什麼要在奧斯蒂亞建造一座大教堂,但根據傳統,這裡是聖伯多祿踏足意大利到達羅馬的地方。此外,從教會起初,奧斯蒂亞主教一直享有特殊的權利:他是樞機團團長,並主持當選教宗的授秩禮。

尚待探索的領域

隨後,齊默爾曼解釋,最近幾週的挖掘工作發現了大教堂的基礎。教堂周圍有一塊墓地,裡面有許多墓葬遺跡,就像整個宗教建築一樣,在漫長的歷史中遭受系統性的掠奪和破壞。他說:“我們只發現了被毀壞的石棺碎片和埋葬的痕跡。根據二十年前的研究分析,我們知道在前庭和大教堂入口處之間的區域有石棺,希望在未來的幾年能夠找到它們。”

最後,齊默爾曼教授高興地表示,最近考古挖掘工作還發現了唱經區,這個部分可以追溯到5至6世紀。下次的挖掘工作將於2024年夏天重啟,不排除有驚喜發現的可能,這或許與聖奧斯定及其母親聖莫尼加有關,聖莫尼加曾在奧斯蒂亞停留三個月,在此病故。

鏈接網址:www.vaticannews.cn

 

2023 Sep 25, 16:22